BUILDING PERFECTION

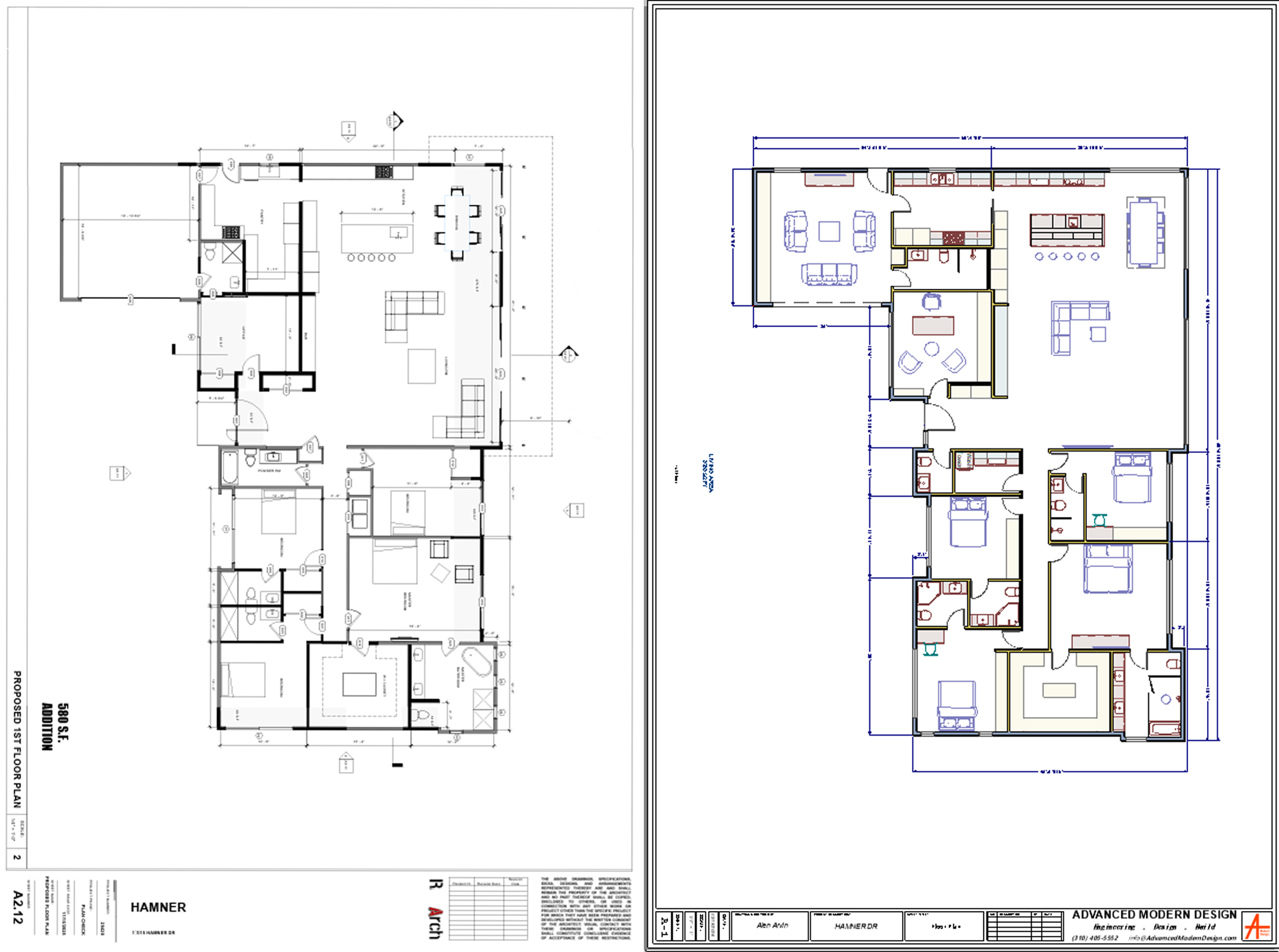
We utilizes all spaces by minimizing walls and carefully planning walkways and pathways to create a sense of spaciousness to increase space utilization and property value..

GET IN TOUCH

STRUCTURAL VISION

The difference is clearly visible.

Architectural planner and interior designer company specializing in a wide range of commercial, residential and public sector projects.